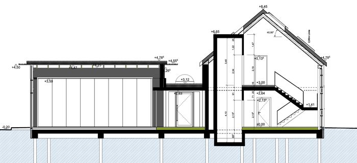
Dorfgemeinschaftshaus Kühlenthal – 2019/21
Ziegelbauweise, PR-Fassade, Flachdach, Steildach, KfW 55
Förderprojekt „Dorferneuerung“ mit Unterstützung bei Bürger-Workshops,
Antragstellung und Verwendungsnachweis
Alle Leistungsphasen
Baukosten 300+400: 1,4 Mio
Die Gemeinde Kühlenthal im Landkreis Augsburg konnte mit Unterstützung eines Förderprogramms des Amtes für ländliche Entwicklung Schwaben
zum Zweck der Belebung des Ortes ein Dorfgemeinschaftshaus errichten.
Im Neubau finden ein großer teilbarer Saal mit Küche, sowie ein Amtszimmer, ein Mehrgenerationenraum und Jugendtreff ihren Platz. Es
wurde auf eine angemessene Baukörper- und Platzgestaltung geachtet, um das neue Gebäude in den Bestand gut zu integrieren und um den Dorffesten
und dem jährlichen Weihnachtsmarkt einen guten Rahmen zu geben.